|
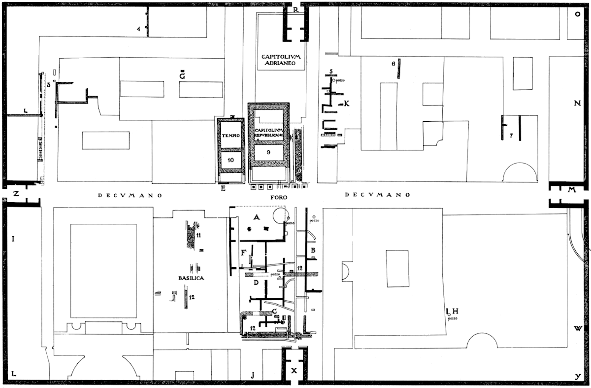
The oldest walls in Ostia belong to the Castrum, a military camp at the mouth of the Tiber, that was probably built in the early third century BC. The walls were made of large tufa blocks. Later they were for the most part demolished, but a few stretches were reused in later buildings. A good example can be seen to the west of Via dei Molini. The fort was rectangular. The main roads inside were called Decumanus and Cardo, running west-east and north-south respectively. There was a gate in each side of the camp. Remains of the eastern gate gate can be seen in a large dip in the Decumanus. The Forum, the main square of the city at the intersection of the Cardo and Decumanus, is mentioned for the first time in an inscription from the second half of the first century BC. A local citizen, Publius Lucilius Gamala, erected a marble tribunal on the Forum, a raised platform used by magistrates acting as judges. Most of the Forum has been excavated deeper down, to explore the early phases of Ostia. The remains of two early temples were then found. The larger one, from the early reign of Augustus, was probably the Capitolium, dedicated - like the Capitolium in Rome - to Jupiter, Juno and Minerva. Most likely it replaced an earlier aedem Iovis, temple of Jupiter, that was according to Livius struck by lightning in 199 BC. Next to the Capitolium was a smaller temple, built around the middle of the first century BC. Its deity has not been identified. On the south part of the square a temple of Roma and Augustus was erected during the reign of Tiberius (14-37 AD). At the end of the first century or in the early second century AD, a Basilica was added to the west and further north the Curia, the meeting hall of the city council and the mayors. During the reign of Hadrian (117-138 AD) the majestic Capitolium, dominating the square today, was built. It replaced the two earlier temples. From the north and south only pedestrians could enter the square. The Decumanus on the other hand continues across the square. To the south of this road, more or less in the centre of the square, is an enigmatic small, round structure. The square was covered with a layer of concrete, but it is not known what finishing stone was on top. On the west and east side are Hadrianic porticoes with granite columns and marble pavement, three steps above the Forum. From the north-east portico three rooms and a staircase can be accessed, from the south-east portico a niche with a statue. To the west of the Temple of Roma and Augustus is a row of shops. The Forum was probably adorned with a statue of Ancus Marcius, king of Rome (640-616 BC) and according to many ancient authors founder of the colony of Ostia. The inscription belonging to this statue was found in a sewer below Via dei Molini:
Statues of the kings of Rome had also been erected in Rome, on the Forum Romanum and the Capitoline Hill. The Ostian inscription most likely belongs to the middle of the second century AD. Note that Ostia is called the first, oldest colony of Roman citizens. Various statues of notables were placed on the Forum, for example an equestrian statue of Caius Domitius Fabius Hermogenes, priest of the deified Hadrian, and an equestrian statue of Manilius Rusticianus, prefect of the annona, the food supply, and patron of the city, in the early fourth century. The base of the latter statue, with the places of attachment of the statue preserved in the top, can be seen to the east of the Basilica. Another undated but very late inscription tells us about the transfer of a statue to the Forum ex sordentibus locis, "from sordid places". Presumably in this area there was an altar of Concordia, used during wedding ceremonies. It was erected not long after the death of Faustina, wife of Antoninus Pius, in the 140's AD. To this altar belongs an inscription on a slab that was reused in the nearby Baths of the Forum. We read that the altar was erected "so that on this altar the young girls who marry in the colony of Ostia, like their husbands, can kneel down and pray". |
![]() Plan of the Forum. After Bloch 1962, fig. 2. | ||||

Remains in the centre of Ostia below the Hadrianic level, within the walls of the Castrum.
Gates of the Castrum: M-R-X-Z. Temples below the Hadrianic Capitolium: 9-10.
Plan: Parco Archeologico di Ostia Antica.

The Forum seen from the north-east. Photo: Klaus Heese.
|
DECVRIONVM DECRETO IMP(eratori) CAESARI T(ito) AELIO HADRIANO ANTONINO AVG(vsto) PIO P(atri) P(atriae) ET DIVAE FAVSTINAE OB INSIGNEM EORVM CONCORDIAM VTIQVE IN ARA VIRGINES QVAE IN COLONIA OSTIENS(i) NVBENT ITEM MARITI EARVM SVPPLICENT |
|
By decree of the decurions. To Emperor Caesar Titus Aelius Hadrianus Antoninus, Augustus, pious, father of the fatherland, and to the deified Faustina, because of their extraordinary harmony, so that on this altar the young girls who marry in the colony of Ostia, like their husbands, can kneel down and pray. |
Inscription belonging to an altar of Concordia, from the 140's AD.
EDR110113; Kousser 2007. Photo: EDCS.
The base of the equestrian statue of Manilius Rusticianus next to the Basilica. Photo: Klaus Heese.
|
MANILIO RVS[ticiano v(iro) p(erfectissimo)] PRAEF(ecto) ANN(onae) A(genti) V(ices) PRA[ef(ectorum) pr(aetorio)] EEMM(inentissimorum) VV(irorum) CVRATO[ri et p]ATRONO SPLENDIDISSIM(a)E COL(oniae) OS[t(iensium)] OB EIVS FIDEM AC MERIT[a] ERGA REM PVBLICAM ORDO ET POPVLVS OSTIENSIVM QVO CIVITAS TITVLIS ADMINISTRA[ti]ONIS EIVS FIERET INLVST[rior] DECREVIT ADQ(ue) CONST[itui]T |
To Manilius Rusticianus, most perfect man, prefect of the annona, acting representative of the praetorian prefects, most eminent men, curator and patron of the most splendid colony of Ostia, on account of his confidence and favours towards the community, the council and people of Ostia, so that the city, through the notices of his administration, would become more noble, decreed and erected. |
The inscription on the base of the equestrian statue of Manilius Rusticianus.
307-310 AD. EDR072926. Photo: Klaus Heese.
|
TRANSLATAM EX SOR
DENTIBVS LOCIS AD ORNATVM FORI ET AD FACIEM PVBLICAM CVRANTE P(ublio) ATTIO CLEMENTINO V(iro) C(larissimo) PRAEF(ecto) ANN(onae) |
Transferred from sordid places, to decorate the forum and for the public appearance. Under the care of Publius Attius Clementinus, most illustrious man, prefect of the food supply. |
A late inscription, recording the transfer of a statue to the Forum.
EDR072684. Photo: Jan Theo Bakker.