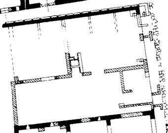
| This is a badly preserved building in the east half of block V,VI. The main interest is in the north wall. It is made of large tufa blocks (opus quadratum) and belongs to the third or second century BC. In the plaster on the wall are the imprints of wooden partition walls. |  Plan of the building. After SO I. | 
