|
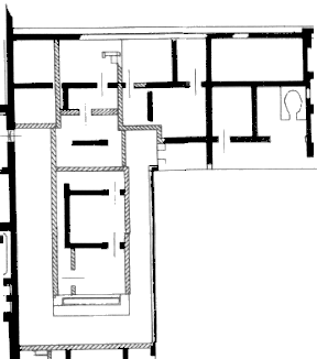
The building is today almost completely filled with earth and overgrown. It is to the north and west of the Four Small Temples (II,VIII,2). It was excavated in the years 1885-1886 by Rodolfo Lanciani. Surprisingly (in view of the proximity of the temples) this seems to have been an industrial building, like buildings II,VIII,8 and 9. An oval structure in the north-east part may have been a basin. In the south-west part a long basin is found (5.30 x 0.68) that had marble revetment on the inside. The building is probably Hadrianic. It has been suggested that it was a fulling mill, but there is no good evidence to support this interpretation.
|
![]() Plan of the building. After SO I. |
